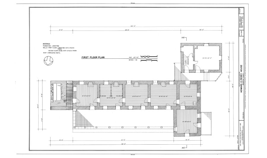
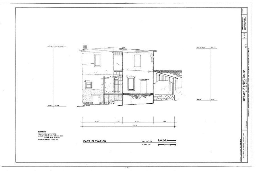
After a century of neglect and deterioration, renovation of the historic Perry Mansion was an ambitious project, taking over three years to complete.
Everything included in this rigorous process placed historical correctness above all other considerations -- except for all the wonderful things that make life better today than it was back then.
We admit that we cheated a bit. We added electricity. We added hot and cold running water. And, we added toilets. Most importantly of all, we added air conditioning. There is music in the air (bluetooth at that) and internet , but no television and none of those damn telephones.























































